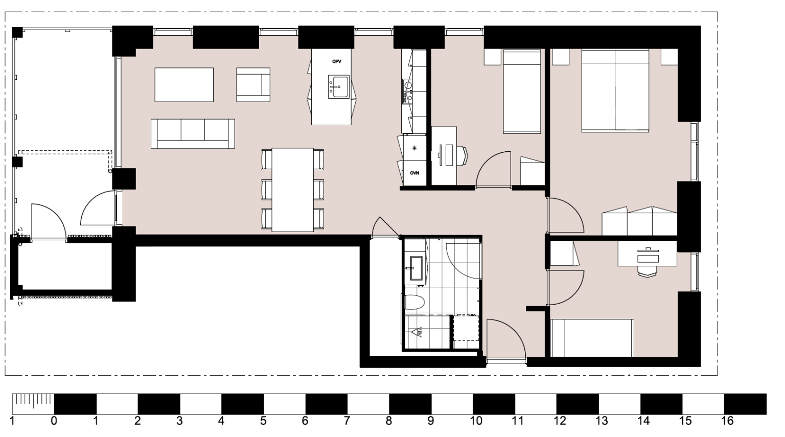
2-D

Type D
Kvm 108
Antal værelser 4
Altan Ja
Depotrum Ja
Parkeringsplads Ja
Etage 2

Leje pr. måned Ring for pris
Depositum 2 måneders leje