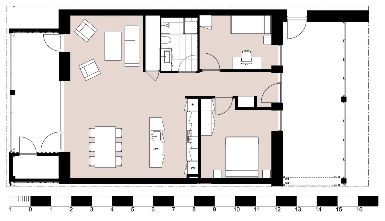
3-B3

Type B1
Kvm 102
Antal værelser 3
Altan Ja
Depotrum Ja
Parkeringsplads Ja
Etage 3

Leje pr. måned Ring for pris
Depositum 2 måneders leje