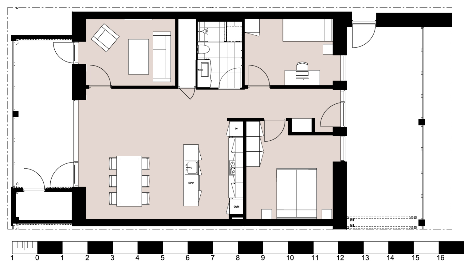
ST-B4

Type B1
Kvm 102
Antal værelser 4
Altan Ja
Depotrum Ja
Parkeringsplads Ja
Etage Stuen

Leje pr. måned Ring for pris
Depositum 2 måneders leje